
Dự Án: Regal Mall Hue
Regal Mall Hue là dự án thuộc Regal Capital Huế (Khu dân cư Tứ Hạ – Hương Văn), có vị trí tọa lạc tại phường Tứ Hạ, thị xã Hương Trà, tỉnh Thừa Thiên Huế. Dự án nằm cạnh các tuyến đường lớn Cách Mạng Tháng Tám, Quốc lộ 1A, đường Độc Lập và đường Lý Nhân Tông. Bên cạnh đó dự án còn nằm cạnh cây cầu Tứ Phú, thuận tiện cho việc di chuyển các địa điểm trong vùng và lân cận.
Quy mô dự án Regal Mall Hue

Regal Mall Hue thuộc dự án Khu dân cư Tứ Hạ – Hương Văn có tổng diện tích 11,9 ha. Diện tích đất để xây dựng dự án trung tâm thương mại Regal Mall Hue là 4.500 m2, mật độ xây dựng 45%.
Dự án được thiết kế xây dựng với chiều cao 5 tầng, trong đó:
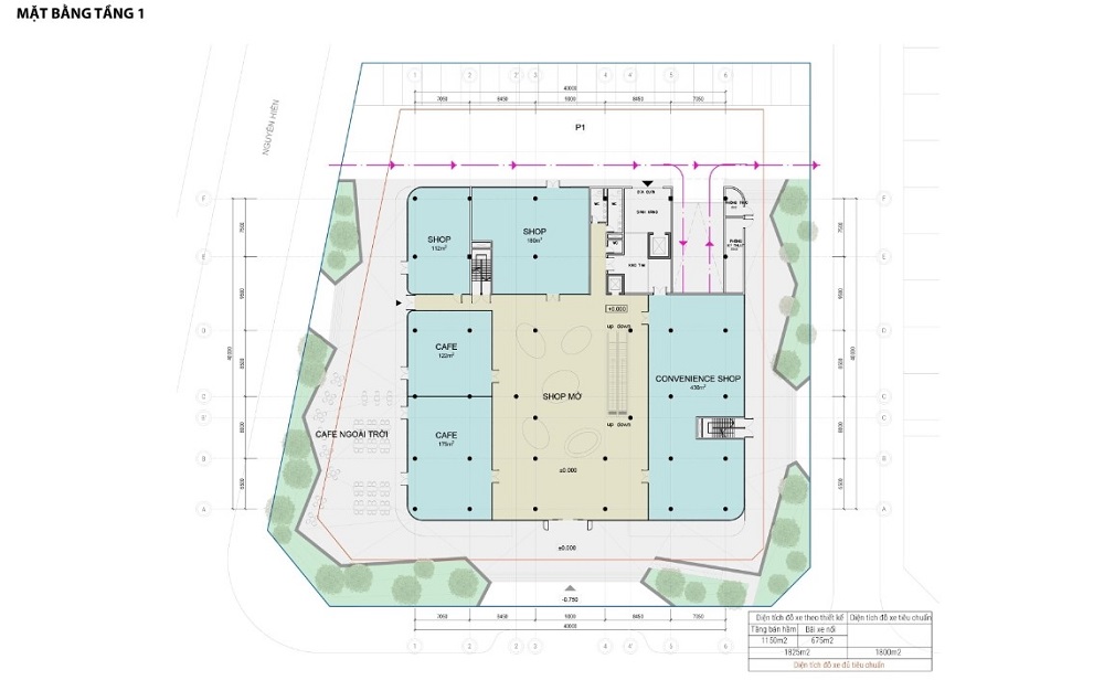
Tầng 1: siêu thị và coffee shop.
Tầng 2 & tầng 3: siêu thị.
Tầng 4 & tầng 5: nhà hàng, hệ thống shop thời trang, phòng tập gym, spa…
Dự án Regal Mall Hue có phía Tây Bắc giáp đường Hoàng Trung, phía Đông Nam và ĐÔng Bắc giáp khu dân cư hiện trạng, phía Tây Nam giáp đường Cách Mạng Tháng 8. Bên cạnh đó dự án liên kết đồng bộ với các tiện ích ngoại khu lân cận như: chợ Tứ Hạ, công viên Hương Trà, TH Hương Văn, TH Tứ Hạ.
Thông tin dự án Regal Mall Hue từ Cafeland

Chủ đầu tư dự án Regal Mall Hue là liên danh Công ty Cổ phần Đất xanh Miền Trung, được thành lập ngày 23/03/2011, đặt trụ sở tại số 52-54 đường Võ Văn Kiệt, phường An Hải Đông, quận Sơn Trà, thành phố Đà Nẵng.
Đất xanh Miền Trung là đơn vị đầu tư và phát triển của hàng loạt dự án mang thương hiệu Regal như: Regal Mall Novotel, Regal Maison Phú Yên, Regal Mall Đà Nẵng, Regal Legend, Regal Complex, Regal Pavillon…
Được biết dự án Regal Mall Hue là một phần thuộc dự án Regal Capital Huế (Khu dân cư Tứ Hạ – Hương Văn), được UBND tỉnh Thừa Thiên Huế ra quyết định chủ trương đầu tư cho liên danh Công ty Cổ phần Đất xanh Miền Trung và Công ty Cổ phần Tập đoàn Đất Xanh tại quyết định số 1042/QĐ-UBND.
Ngày 02/09/2022, chủ đầu tư Đất Xanh Miền Trung vừa phối hợp với UBND thị xã Hương Trà (Thừa Thiên Huế) tổ chức lễ động thổ dự án Regal Capital Huế (Khu dân cư Tứ Hạ - Hương Văn).









